148 AS Marcus Thranes Gate 7, 9 og 11
  • Hjem
  • Husordensregler
  • Dokumenter
  • Kart
  • Styret
  • Feilmeldinger
  • Hjem
  • Husordensregler
  • Dokumenter
  • Kart
  • Styret
  • Feilmeldinger

Kart

Sandakerveien 11
  • 1.etg
  • 2.etg
  • 3.etg
  • 4.etg
  • 5.etg
  • Kjeller
Åpne i fullskjerm
Åpne i fullskjerm
Åpne i fullskjerm
Åpne i fullskjerm
Åpne i fullskjerm
Åpne i fullskjerm
  • Kjeller
Åpne i fullskjerm
  • 1.etg
  • 2.etg
  • 3.etg
  • 4.etg
  • 5.etg
  • Kjeller
Åpne i fullskjerm
Åpne i fullskjerm
Åpne i fullskjerm
Åpne i fullskjerm
Åpne i fullskjerm
Åpne i fullskjerm
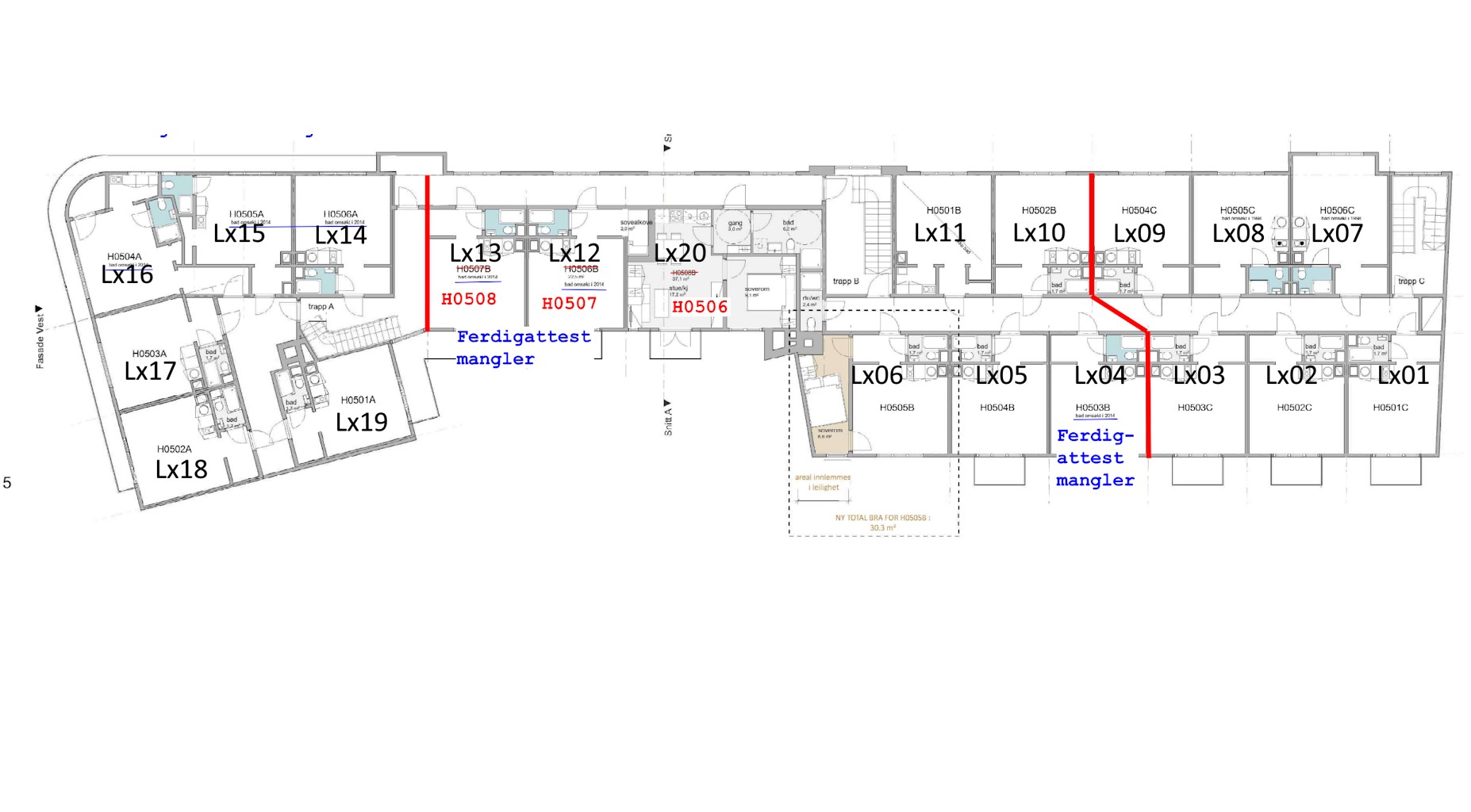
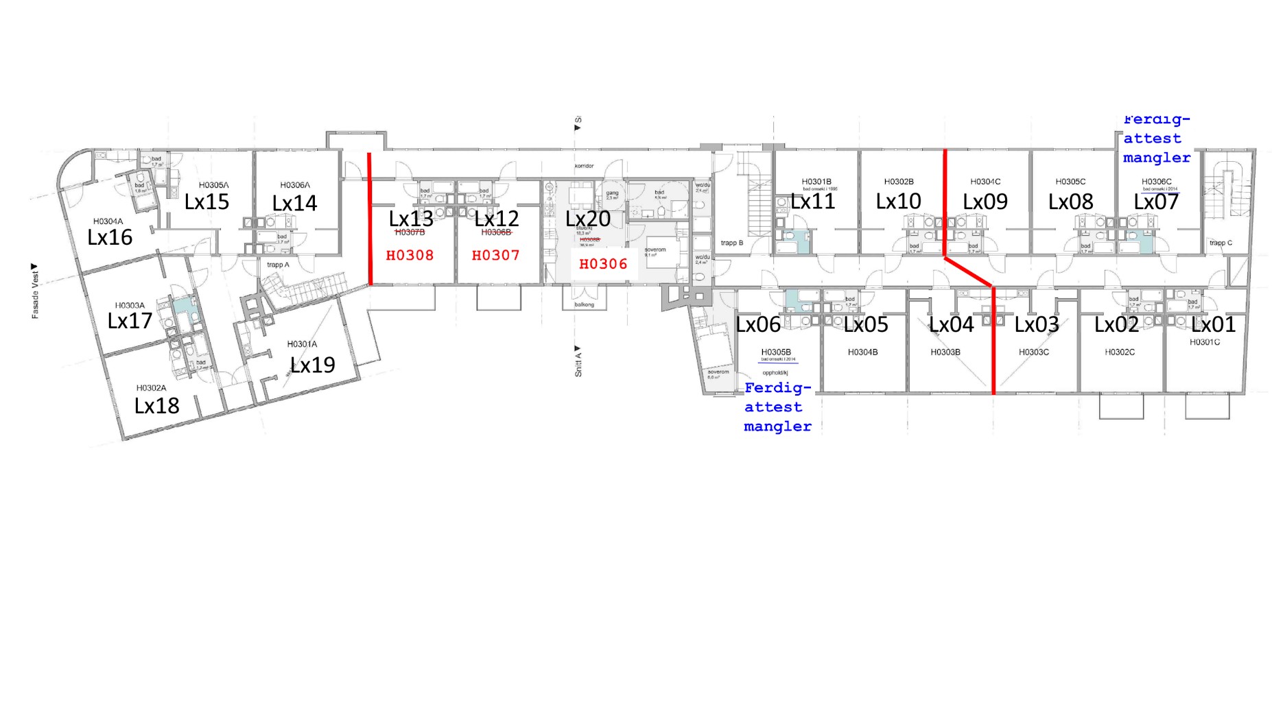
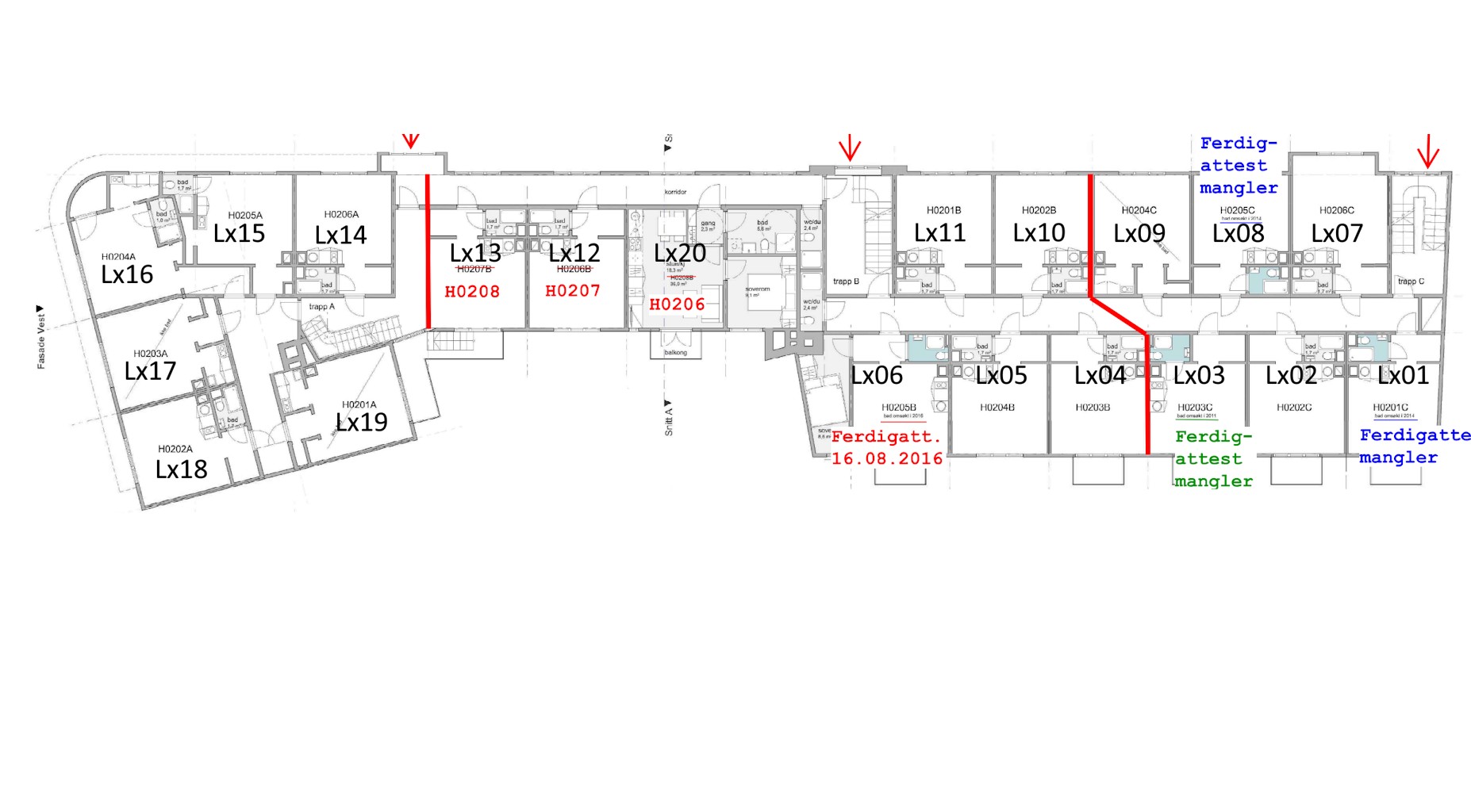
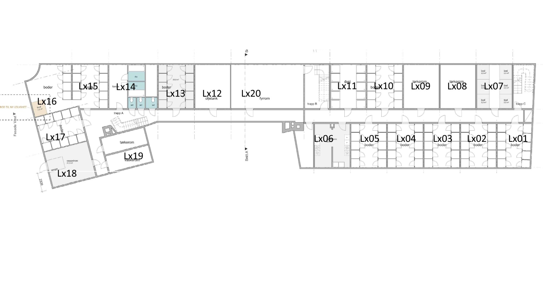
Vanlige kart Teknisk Kart Hnr og ferdigattester (ubekreftet)

148 AS Marcus Thranes Gate 7, 9 og 11

Glemt passord?

Besøksadresse

Marcus Thranes Gate 7
0473 Oslo
Vis på kart

Postadresse

148 AS Marcus Thranes Gate 7, 9 og 11
c/o Norian Regnskap AS
Postboks 1095 Sentrum
0104 OSLO Oslo

Kontaktinformasjon

Orgnummer: 919782552
Telefon: 22 91 14 86 (forretningsfører)
Epost: post@sandakerveien11.no
Info: Beboer skal håndtere hastesituasjoner ved å ringe politi, brannvesen el. Informer forretningsfører

2026 © styret.com